Skip to main content < /a>
Share it to friends
The Hibou Beach

Elevation A1

The Hibou Beach

Elevation A2 & A1-END

REAR LANE TOWNHOMES

The Hibou Beach

3 BEDROOM

ELEVATION A1: 1943 SQ.FT.

ELEVATION A2: 2010 SQ.FT.

ELEVATION A1-END: 1997 SQ.FT.

DOWNLOAD PDF

FIRST FLOOR -
The Hibou Beach Ground Floor

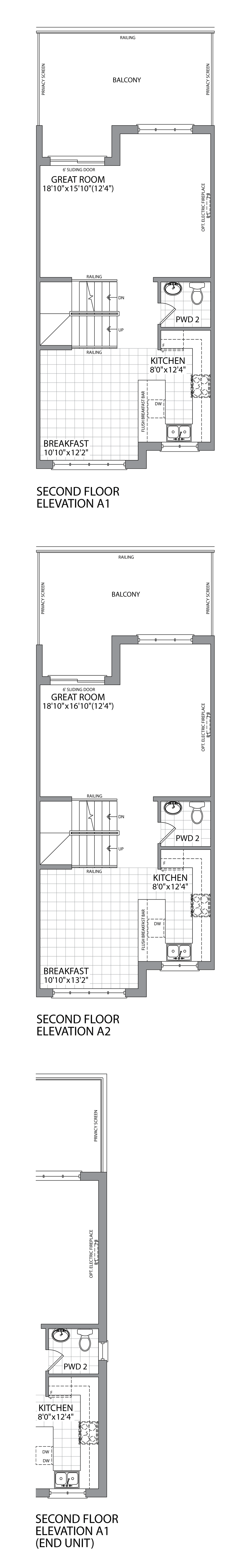
SECOND FLOOR -
The Hibou Beach Second Floor

THIRD FLOOR -
The Hibou Beach Third Floor

BASEMENT -
The Hibou Beach Basement

Prices, figures, illustrations, sizes, features and finishes are subject to change without notice. Areas and dimensions are approximate and actual usable floor space may vary from stated area, as Open to Below area is included. Layout may be reverse of the unit purchased. E. & O.E. NOVEMBER 2022 DFT-2