Skip to main content < /a>
Share it to friends
The Kelso Beach

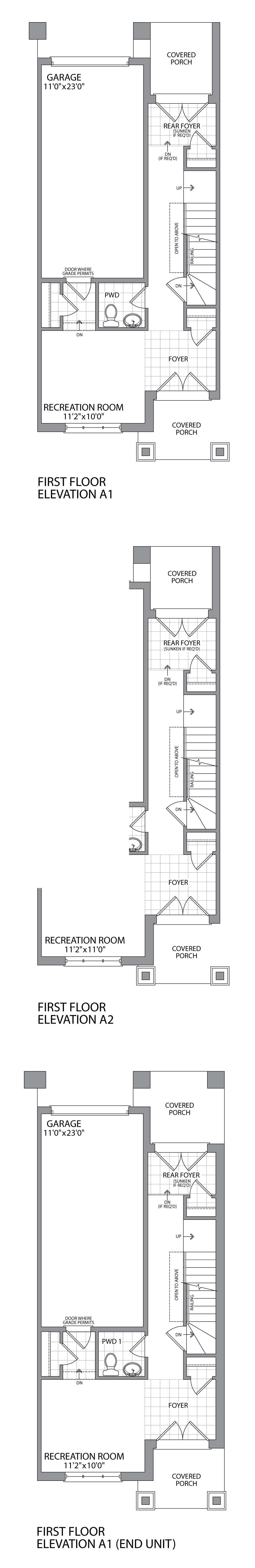
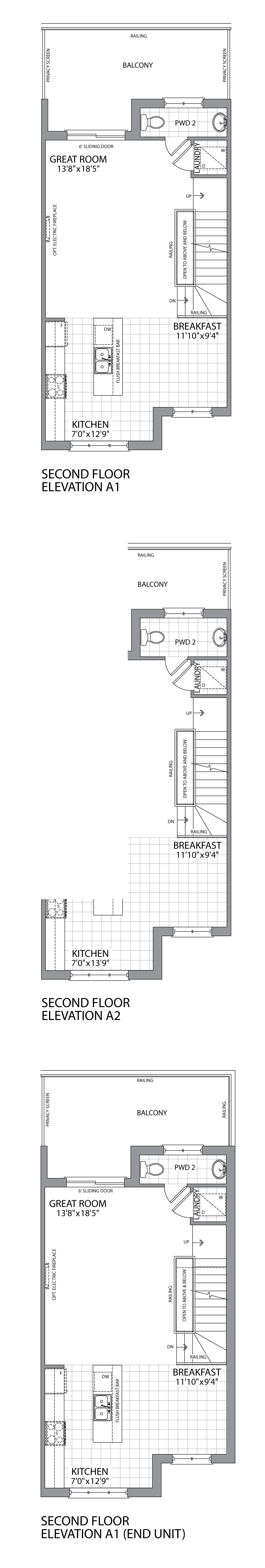
Elevation A1

The Kelso Beach

Elevation A2

The Kelso Beach

Elevation A1-END

REAR LANE TOWNHOMES

The Kelso Beach

3 BEDROOM

ELEVATION A1: 1780 SQ.FT.

ELEVATION A2: 1847 SQ.FT.

ELEVATION A1-END: 1830 SQ.FT.

DOWNLOAD PDF

FIRST FLOOR -
The Kelso Beach  Ground Floor

SECOND FLOOR -
The Kelso Beach  Second Floor

THIRD FLOOR -
The Kelso Beach  Third Floor

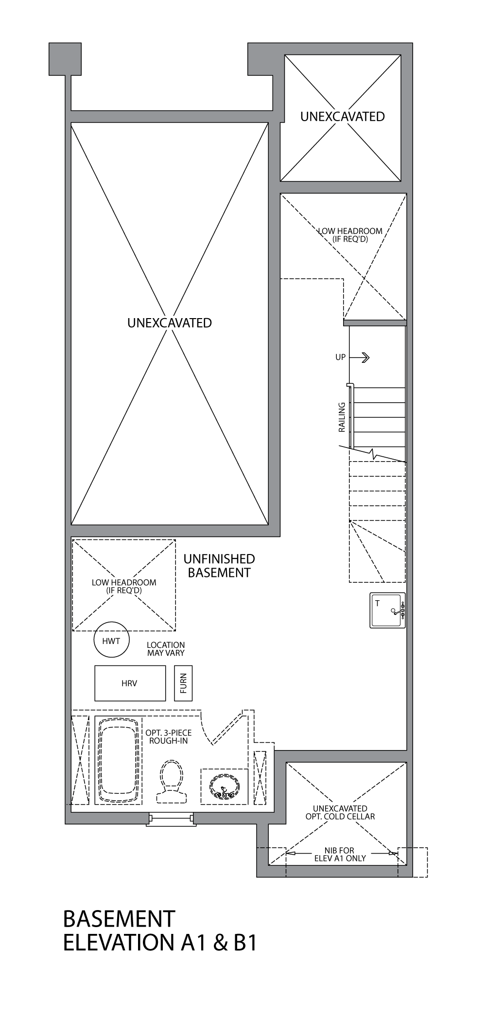
BASEMENT -
The Kelso Beach  Basement

Prices, figures, illustrations, sizes, features and finishes are subject to change without notice. Areas and dimensions are approximate and actual usable floor space may vary from stated area, as Open to Below area is included. Layout may be reverse of the unit purchased. E. & O.E. NOVEMBER 2022 DFT-1