Skip to main content < /a>
Share it to friends
The Kelso Beach

Elevation B1

The Kelso Beach

Elevation B2

The Kelso Beach

Elevation B1-END

REAR LANE TOWNHOMES

The Kelso Beach

3 BEDROOM

ELEVATION B1: 1765 SQ.FT.

ELEVATION B2: 1841 SQ.FT.

ELEVATION B1-END: 1811 SQ.FT.

DOWNLOAD PDF

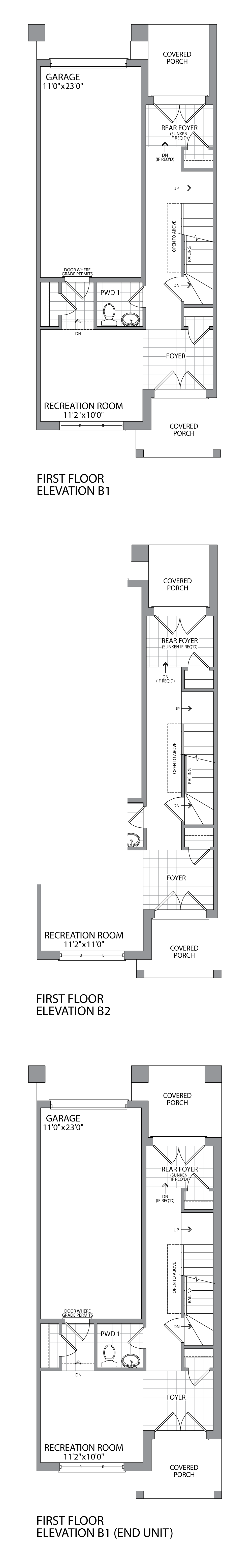
FIRST FLOOR -
The Kelso Beach Ground Floor

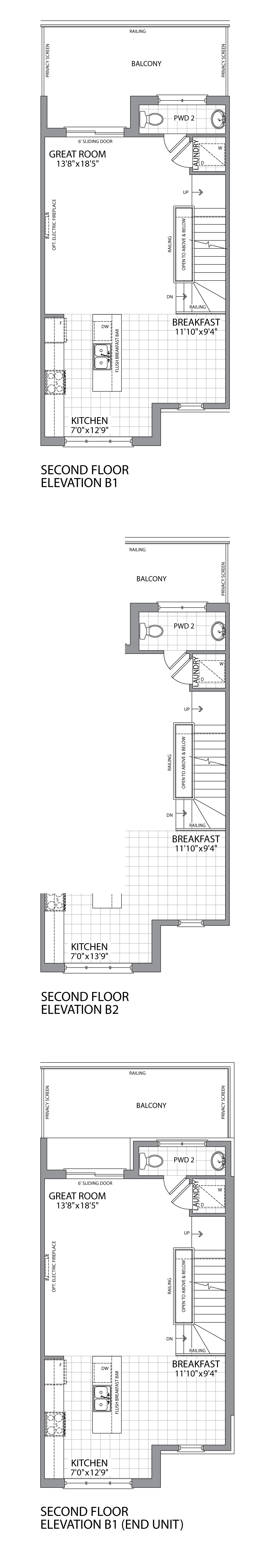
SECOND FLOOR -
The Kelso Beach Second Floor

THIRD FLOOR -
The Kelso Beach Third Floor

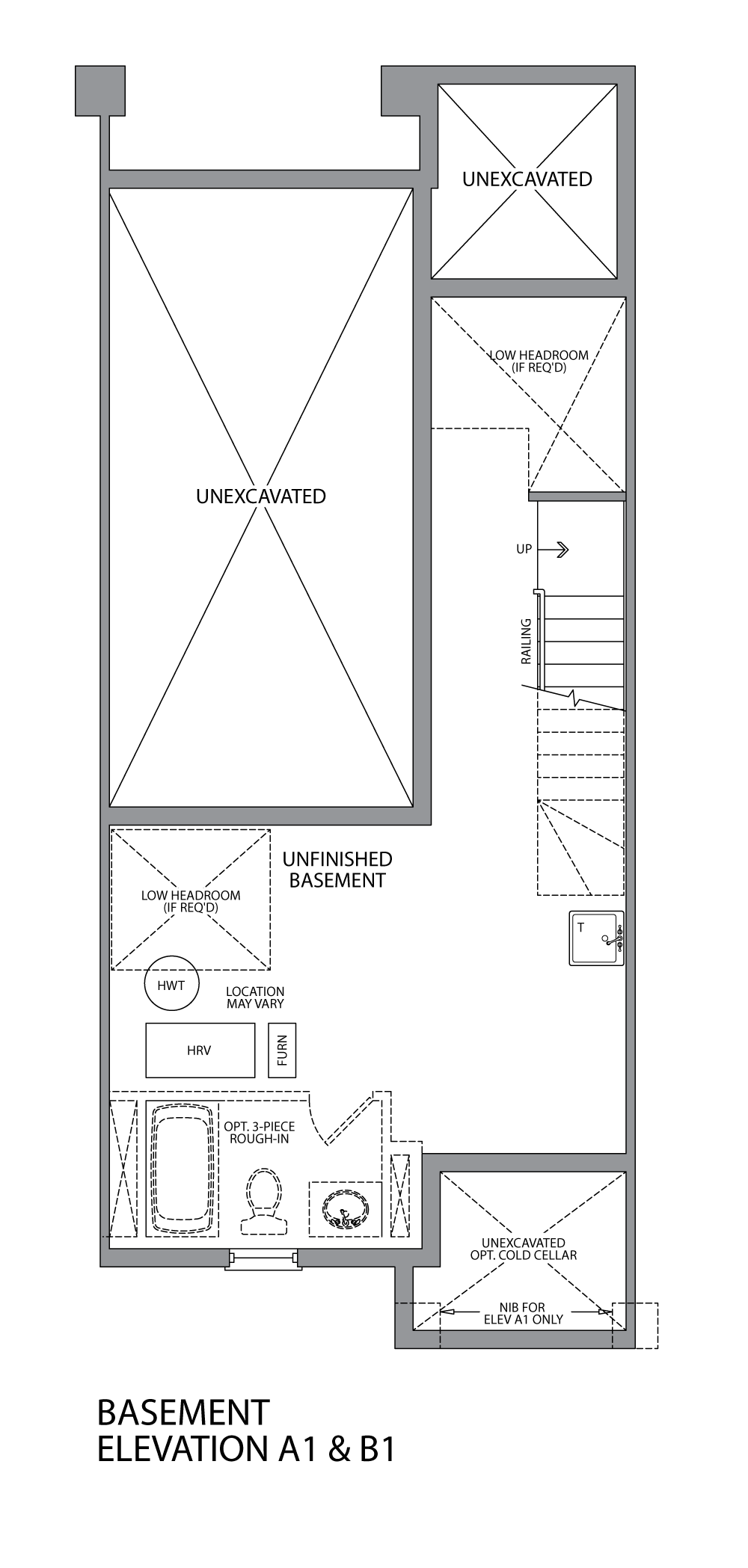
BASEMENT -
The Kelso Beach Basement

Prices, figures, illustrations, sizes, features and finishes are subject to change without notice. Areas and dimensions are approximate and actual usable floor space may vary from stated area, as Open to Below area is included. Layout may be reverse of the unit purchased. E. & O.E. NOVEMBER 2022 DFT-1